B2B - LIBONI

 

Ricerca per:

 

Ricerca per:

 

Ricerca per:

PLACCHE PANZETTA INTERNE PAN316

Placca interna di ricambio per serratura Panzetta 316DC. Dimensione mm.210x70. 2 fori cilindro sagomato.

SERRATURE PANZETTA PORTE BLINDATE 216DM

Serratura DOPPIA da applicare, triplice. Superiore doppia mappa inferiore a cilindro sagomato. Catenacci speciali piatti sui lati. Serratura superiore 2 catenacci e scrocco, inferiore 1 catenaccio. Entrata mm.63. A leve. INDIPENDENTE. Con trappola. Mezzo giro reversibile. Catenacci corsa mm.36 interasse mm.54,5. Interasse fori defender mm.38. Nuclei ricambio ns.cod.845808 e 845809.

PLACCHE PANZETTA ESTERNE PAN318

Placca esterna di ricambio per serratura Panzetta 216DM. Dimensione mm.210x70. Foro doppia mappa e defender mm.50.

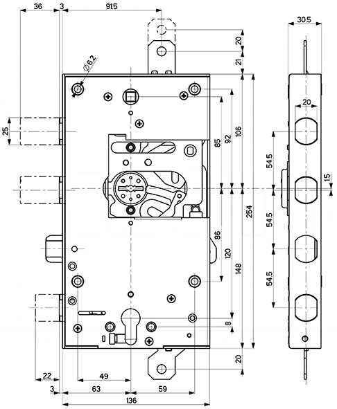
SERRATURE PANZETTA PORTE BLINDATE 316DC

Serratura DOPPIA da applicare, triplice. Doppio cilindro sagomato. Catenacci speciali piatti sui lati. Serratura superiore 2 catenacci e scrocco, inferiore 1 catenaccio. Entrata mm.63, quadro maniglia mm.8. A leve. DIPENDENTE (la chiusura della serratura inferiore blocca quella superiore). Con trappola. Mezzo giro reversibile. Catenacci corsa mm.29 interasse mm.54,5. Interasse fori defender mm.38.

PLACCHE PANZETTA INTERNE PAN319

Placca interna di ricambio per serratura Panzetta 216DM. Dimensione mm.210x70. Foro doppia mappa e cilindro sagomato.

SERRATURE PANZETTA PORTE BLINDATE 116MM

Serratura SINGOLA a doppia mappa, da applicare, triplice. Catenacci piatti sui lati. 2 catenacci e scrocco. Entrata mm.63. A leve. Con trappola. Mezzo giro reversibile. Catenacci corsa mm.36 interasse mm.54,5. Aste corsa mm.20. Interasse fori defender mm.38. ATTENZIONE LE PARTI SEGNATE IN ROSSO SONO SOLO DEI FORI SENZA MECCANISMO CORRISPONDENTE. Nuclei ricambio ns.cod.845808 e 845809.

PLACCHE PANZETTA ESTERNE PAN314

Placca esterna di ricambio per serratura Panzetta 316DC. Dimensione mm.210x70. 2 fori defender mm.50.

SERRATURE PANZETTA PORTE BLINDATE 116MC

Serratura SINGOLA a cilindro, da applicare, triplice. Catenacci piatti sui lati. 2 catenacci e scrocco. Entrata mm.63, quadro maniglia mm.8. A leve. Con trappola. Mezzo giro reversibile. Catenacci corsa mm.29 interasse mm.54,5. Aste corsa mm.20. Interasse fori defender mm.38. ATTENZIONE LE PARTI SEGNATE IN ROSSO SONO SOLO DEI FORI SENZA MECCANISMO CORRISPONDENTE.

B2B - LIBONI